

88 380 €
2 Стаи
1 Бани
70 м²
Ет. 2/8
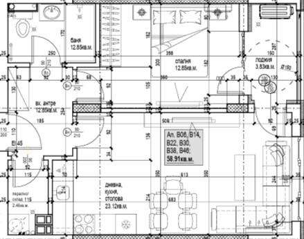
ОБЯВА № 143655 | Предложение от Deluxe Homes | Двустаен апартамент в новостроящ комплекс в кв Кючук Париж. | Разпределение: входно антре, дневна с кухненски бокс и трапезария, спалня, баня с тоалетна, склад, лоджия. | Локация: осигурява бърз достъп до центъра и всичко необходимо за динамичен и удобен градски живот - търговски обекти, училища, медицински услуги и зелени пространства. | Сграда с 100% осигурено паркиране. Видеонаблюдение и сигурност. Луксозно завършени общи части. Повишен акустичен комфорт. Алуминиева дограма Reynaers Aluminium. Филтрация на питейната вода. Външен зелен кът за отдих с детска площадка. Подготовка за умен дом.