Обратно към имоти





+2
АпартаментПродава
Тристаен апартамент с Градски удобства и спокойствие - Марково
с. Марково, Пловдив, област
166 993 €
3 Стаи
2 Бани
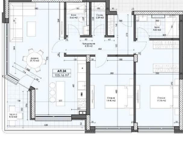
126 м²
Ет. 2/3
Описание
ОБЯВА № 143363 | Предложение от Deluxe Homes | Тристаен апартамент в нова сграда в село Марково. | Разпределение: коридор, дневна с кухненски бокс и трапезария, спалня с баня и тоалетна, спалня, баня и wc, склад, тераса. | Изложение: Югозапад. | Затворен комплекс с охрана и видеонаблюдение, детска площадка. Близост до градски удобства и спокоен селски живот.
Характеристики
В строежТухлаЕл. отоплениеАсансьорТераса
