Обратно към имоти



АпартаментПродава
Нов двустаен апартамент кв. Южен / Възможност за преустройство
Южен, Пловдив
100 000 €
2 Стаи
1 Бани
98 м²
Описание
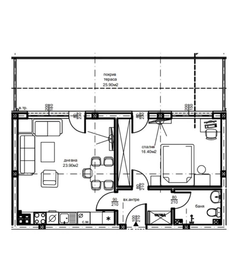
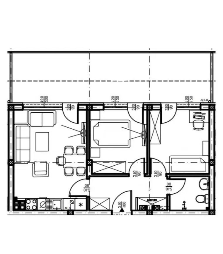
ОБЯВА № 141745 | Предложение от Deluxe Homes | Двустаен апартамент пред АКТ 15 с възможност за преустройство на тристаен в кв Южен. | Разпределение: входно антре, дневна с кухненски бокс и трапезария, спалня, баня с WC, тераса. | Възможност за закупуване на парко място или гараж.
Характеристики
В строежТухлаЕл. отоплениеАсансьорТераса
