Обратно към имоти

АпартаментПродава
Пред АКТ 16! Двустаен ЮЖЕН апартамент НОВА СГРАДА - Южен
Южен, Пловдив
85 000 €
2 Стаи
1 Бани
56 м²
Описание
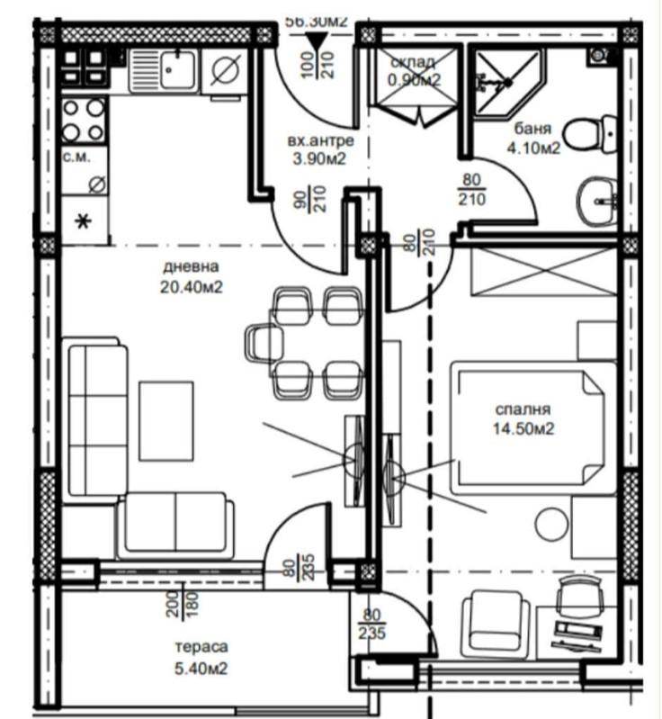
ОБЯВА № 143011 | Предложение от Deluxe Homes | Двустаен апартамент в нова сграда в кв. Южен- град Пловдив. Сградата е на степен завършеност АКТ 15. | Разпределение: коридор, всекидневна с кухня, спалня, баня и тоалетна, балкон. | Изложение: Юг. | Сграда ново строителство на тиха локация в близост до магазини, транспорт, училища.
Характеристики
В строежТухлаЕл. отоплениеАсансьорТераса
