Обратно към имоти

АпартаментПродава
Двустаен апартамент кв. Кючук Париж
Кючук Париж, Пловдив
94 710 €
2 Стаи
1 Бани
77 м²
Описание
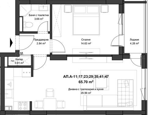
ОБЯВА № 142728 | Предложение от Deluxe Homes | двустаен апартамент в един от най-перспективните райони на гр. Пловдив - кв. Кючук Париж. | Разпределение: предверие /2.84м2/, баня с тоалетна /3.66м2/, дневна с трапезария и кухня /29.99м2/, спалня /14.63м2/, лоджия /4.28м2/, килер /0.91м2/. | Изложение: Изток. | Локация: в близост до сградата има училища, детски градини, хранителни вериги, както и множество автобусни спирки на градски транспорт. | Възможност за разсрочени схеми на плащане!
Характеристики
В строежТухлаЕл. отоплениеАсансьорТераса
