
97 800 €
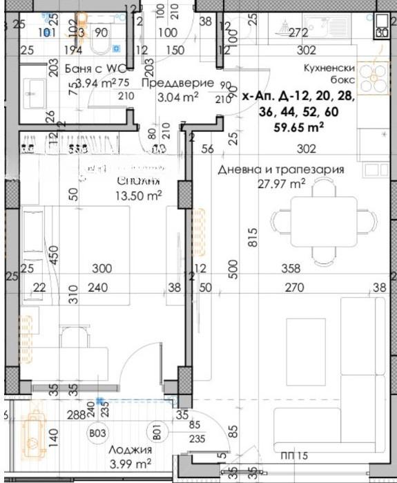
2 Стаи
1 Бани
74 м²
ОБЯВА № 143270 | Предложение от Deluxe Homes | Двустаен апартамент, разположен на отлична локация в кв. Кючук Париж. | Разпределение: дневна с кухня и трапезария, спалня, баня с тоалетна, тераса, избено помещение. | Възможност за закупуване на парко място.