Обратно към имоти



АпартаментПродава
Двустаен нова сграда - кв. Христо Смирненски
Пловдив
105 503 €
2 Стаи
1 Бани
77 м²
Описание
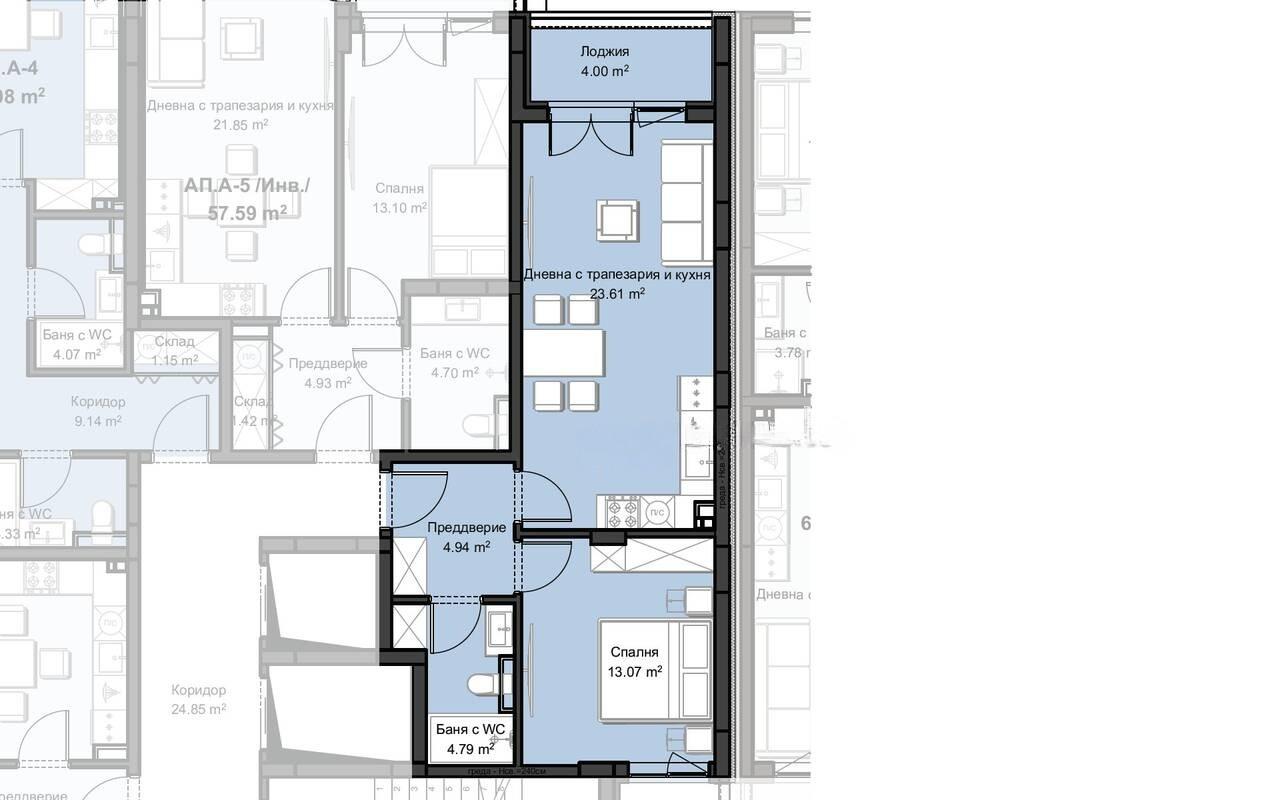
ОБЯВА № 143299 | Предложение от Deluxe Homes | Двустаен апартамент в нова сграда в кв. Христо Смирненски. | Разпределение: коридор, дневна кухненски бокс и трапезария, спалня, баня+wc и лоджия. | Сградата разполага с двустайни, тристайни апартаменти. | Степен на завършеност: гипсова мазилка по стени и тавани, циментова замазка, блиндирана входна врата, висок клас алуминиева дограма, прилежащо избено помещение | Възможност за луксозно довършване по избор.
Характеристики
В строежТухлаЕл. отоплениеАсансьорТераса
