Обратно към имоти

АпартаментПродава
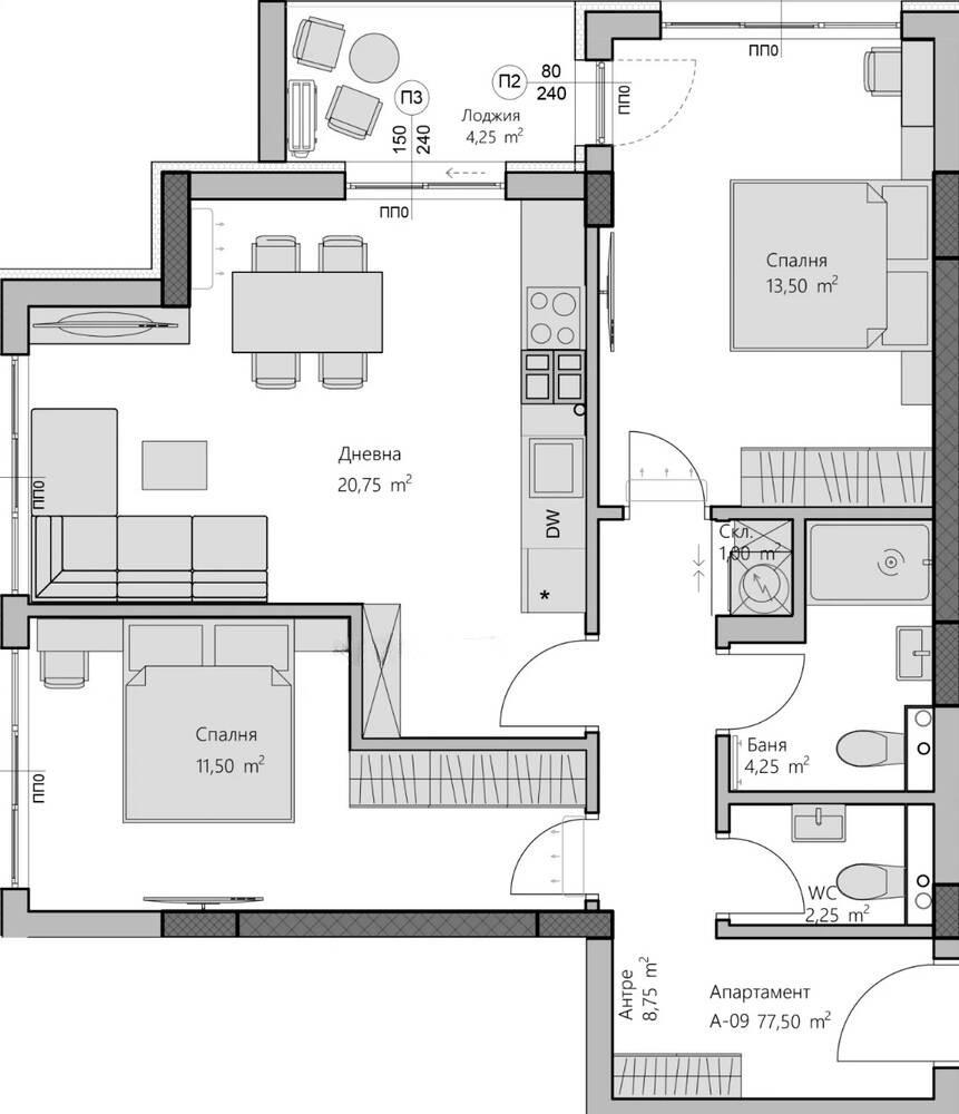
ПРЕД АКТ 14! Тристаен апартамент НОВА СГРАДА - Христо Смирненски
Пловдив
141 000 €
3 Стаи
2 Бани
91 м²
Описание
ОБЯВА № 142273 | Предложение от Deluxe Homes | Тристаен апартамент в нова сграда в кв. Христо Смирненски. | Разпределение: вх. антре, дневна с кухненски бокс и трапезария, две спални, баня и тоалетна и отделна тоалетна, лоджия. | Изложение: Юг | Гъвкава схема на плащане: 12 000 евро - първоначална вноска!
Характеристики
В строежТухлаЕл. отоплениеАсансьорТераса
