Обратно към имоти



АпартаментПродава
Тристаен апартамент с АКТ 14 - кв. Остромила
Пловдив
224 750 €
3 Стаи
2 Бани
155 м²
Описание
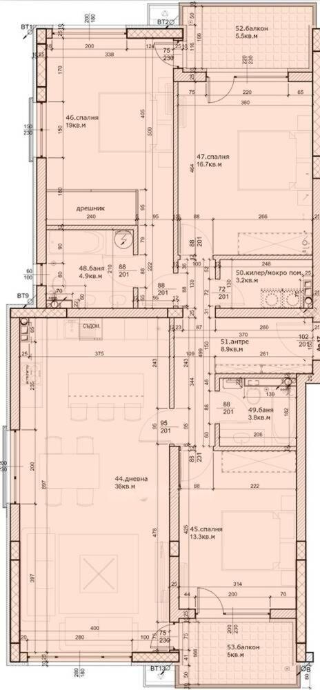
ОБЯВА № 143119 | Предложение от Deluxe Homes | Тристаен апартамент в нов комплекс с АКТ 14 в кв. Остромила. | Разпределение: входно антре, дневна с кухненски бокс и трапезария, спалня, спалня с дрешник, две бани с тоалетна, два балкона. | Локация: в непосредствена близост до VIA park, училища, детски градини, болници, спирки на градския транспорт.
Характеристики
В строежТухлаЕл. отоплениеАсансьорТераса
