Обратно към имоти



АпартаментПродава
Двустаен апартамент с двор с АКТ 14 - кв. Остромила
Пловдив
130 039 €
2 Стаи
1 Бани
96 м²
Описание
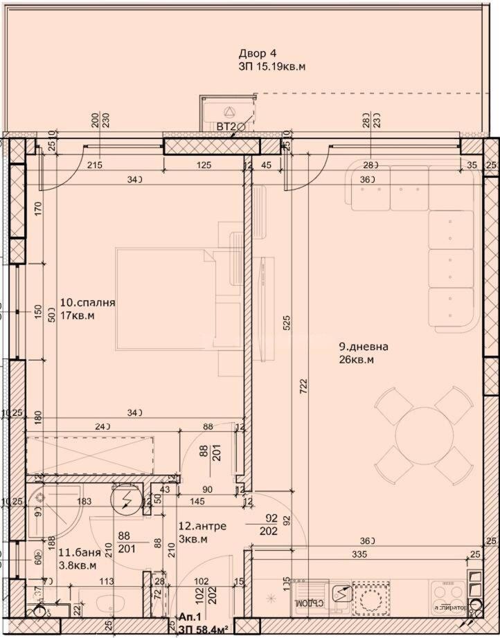
ОБЯВА № 143119 | Предложение от Deluxe Homes | Двустаен апартамент в нов комплекс с АКТ 14 в кв. Остромила. | Разпределение: входно антре, дневна с кухненски бокс и трапезария, спалня, баня и тоалетна, двор - 15 кв.м. и склад. | Локация: в непосредствена близост до VIA park, училища, детски градини, болници, спирки на градския транспорт.
Характеристики
В строежТухлаЕл. отоплениеАсансьорТераса
