Обратно към имоти

АпартаментПродава
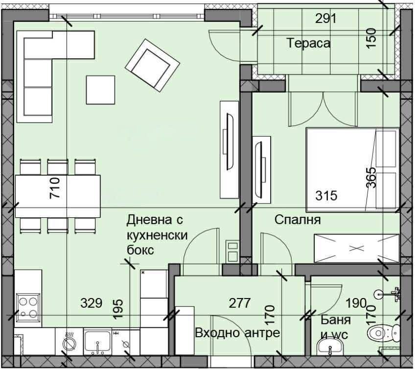
Двустаен апартамент - кв. Остромила / НОВА СГРАДА
Пловдив
85 000 €
2 Стаи
1 Бани
70 м²
Описание
ОБЯВА № 143017 | Предложение от Deluxe Homes | Двустаен апартамент в нова сграда в кв. Остромила. | Разпределение: входно антре, дневна с кухненски бокс и трапезария, спалня, баня с WC, тераса. | Възможност за закупуване на парко място.
Характеристики
В строежТухлаЕл. отоплениеАсансьорТераса
