Обратно към имоти



АпартаментПродава
Многостаен апартамент НОВА СГРАДА - Гагарин
Пловдив
150 920 €
5 Стаи
2 Бани
154 м²
Описание
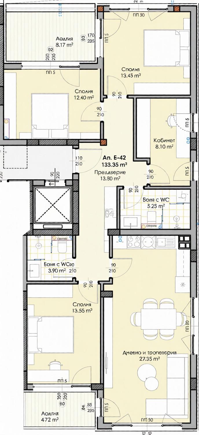
ОБЯВА № 142691 | Предложение от Deluxe Homes | Многостаен апартамент в нов жилищен комплекс в кв. Гагарин - град Пловдив. | Разпределение: входно антре, дневна-трапезария-кухненски бокс, три спални, кабинет, две тераси, две бани+wc. | Изложение - Север и Юг. | Локация: осигурява бърз достъп до ключови точки на града, а хармонията между комфорт, сигурност и естетика. | В сградата разполагаме с едностайни, двустайни, тристайни и многостайни апартаменти.
Характеристики
В строежТухлаЕл. отоплениеАсансьорТераса
