Обратно към имоти



АпартаментПродава
ПРЕД АКТ 14! Двустаен апартамент кв. Младежки хълм
Пловдив
117 810 €
2 Стаи
1 Бани
77 м²
Описание
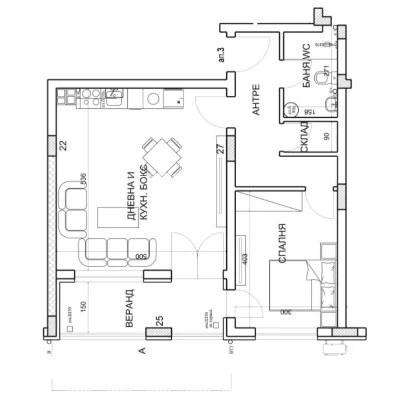
ОБЯВА № 140417 | Предложение от Deluxe Homes | Двустаен апартамент в нова луксозна сграда в кв. Младежки хълм. | Разпределение: антре, дневна с кухня и трапезария, спалня, баня и тоалетна, склад и веранда. | Локация: сградата се намира в непосредствена близост до факултета по ”Дентална медицина”, парк ”Младежки хълм” и ”Медицински университет Пловдив”. | В сградата разполагаме с двустайни, тристайни и четиристайни апартаменти.
Характеристики
В строежТухлаТерасаАсансьор
